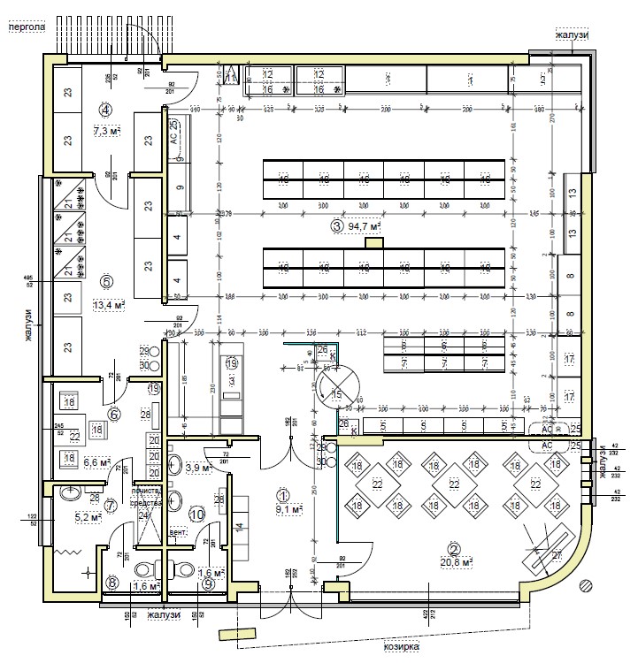
В този проект инвеститора дойде с доста необичайно задание. Той искаше да построи голям модерен магазин за хората в село Ставерци, но също искаше към него да има и стая специално предназначена за събиранията на пенсионерския клуб. Макар и на пръв поглед странното задание, в крайна сметка се получи една чудесна сграда с мисъл за бабите и дядовците от селото.




